Jangan Biarkan Rumah Anda dibangun Asal-Asalan. Serahkan pada tenaga Desain Profesional yang Berpengalaman.

Solusi tepat adalah gambar 2D arsitektur yang dirancang khusus sesuai lahan, fungsi ruang, dan gaya hidup Anda

Wajib Pakai Jasa Desain Poinstudio

Layanan desain gambar arsitektur yang terukur dan bernilai—dirancang untuk mewujudkan ruang yang tidak hanya estetis, tapi juga fungsional dan selaras dengan gaya hidup Anda. Setiap garis, setiap detail, kami rancang dengan tujuan: menciptakan ruang yang bekerja sebaik Anda.

Desain Perencanaan 2D/3D Komplit.

Desain Sesuai Reverensi

Kami percaya, desain bukan sekadar bentuk—tapi juga rasa. Karena itu, setiap karya kami berangkat dari atmosfer yang klien bayangkan, lalu kami wujudkan secara presisi dan estetis

Gambar Bisa Digunakan Untuk IMB

Gambar yang kami buat bisa untuk pengajuan perizininan IMB

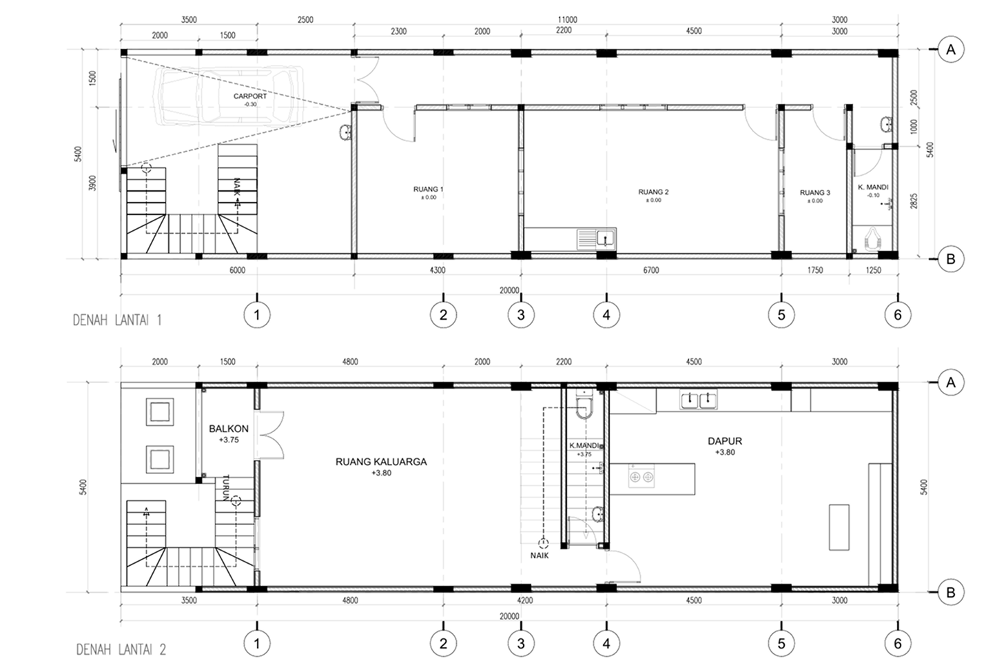
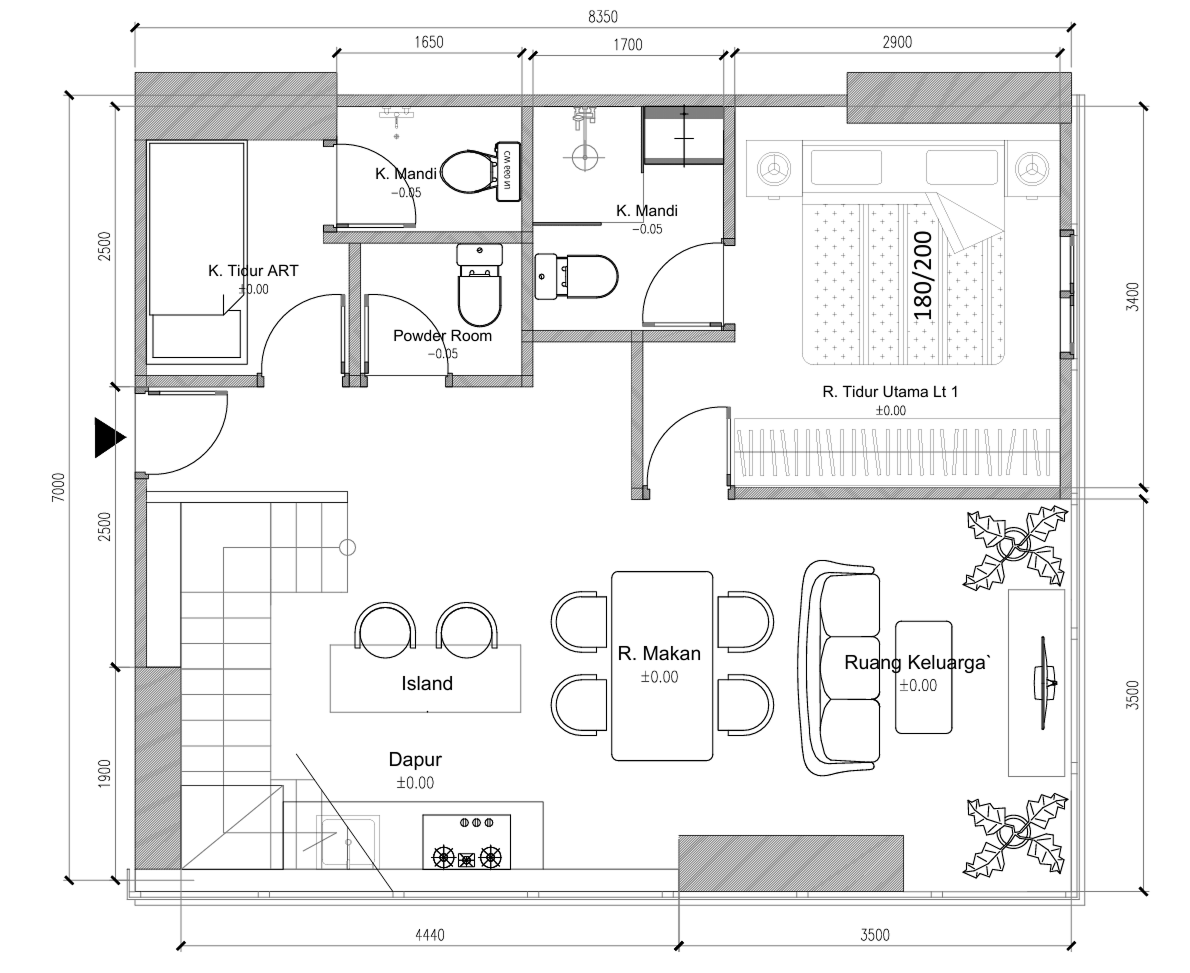
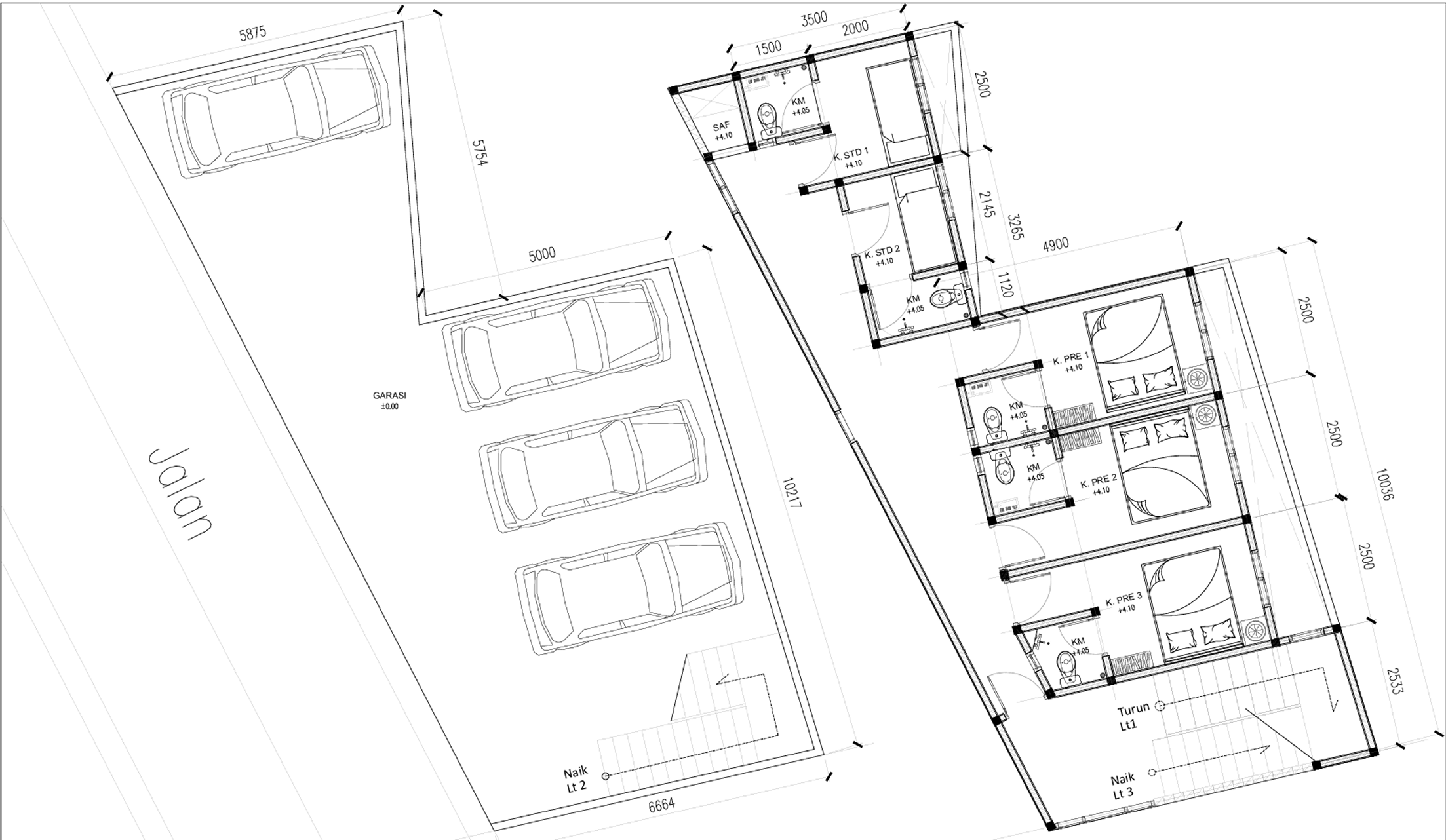
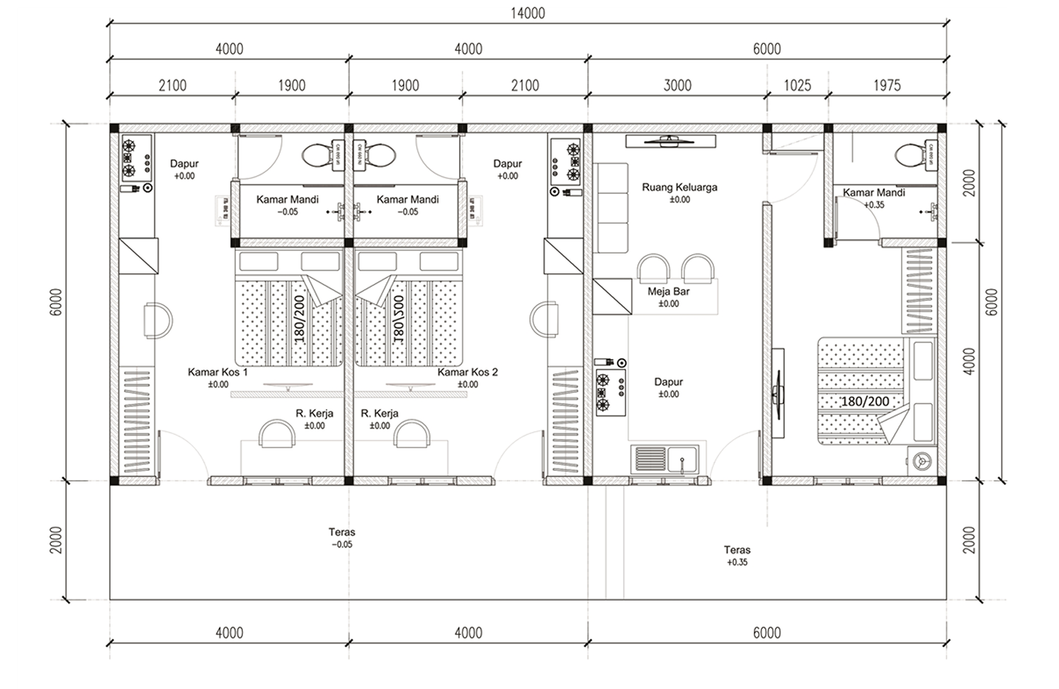
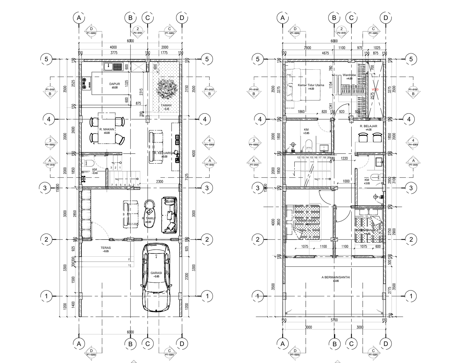
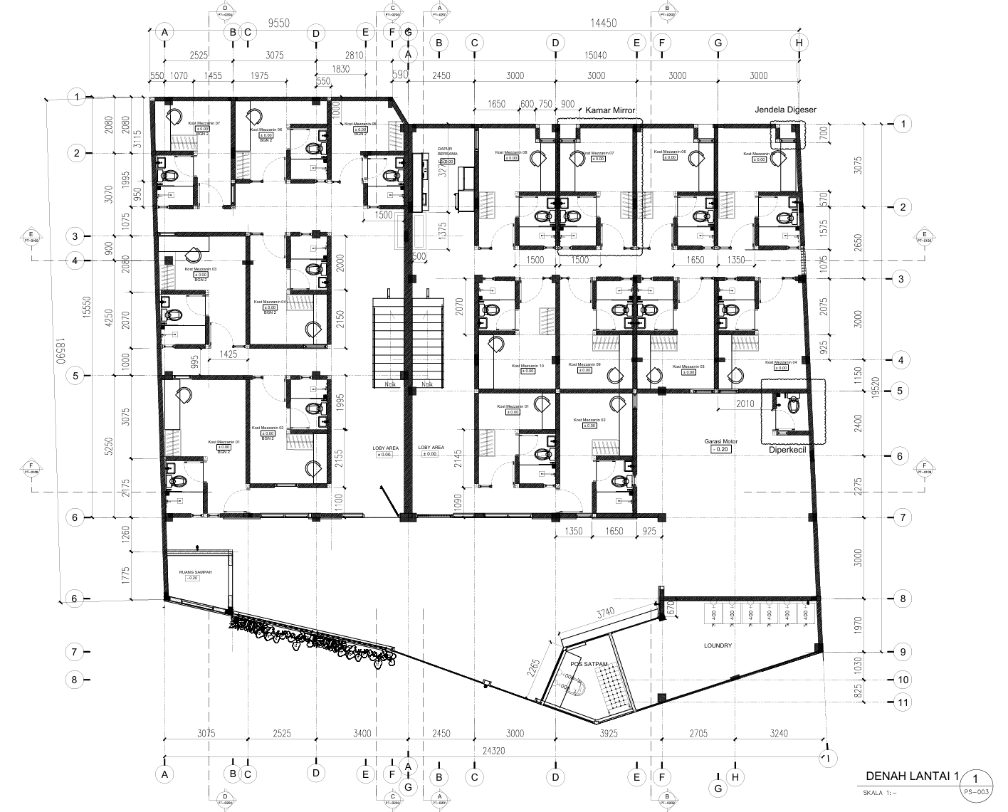
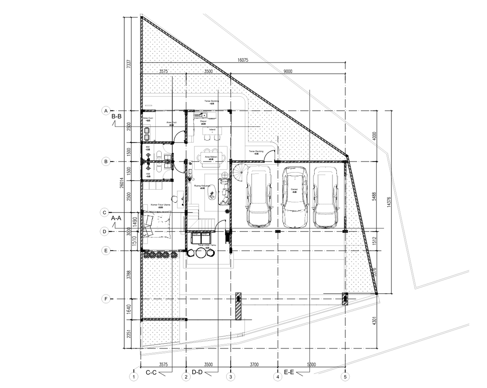
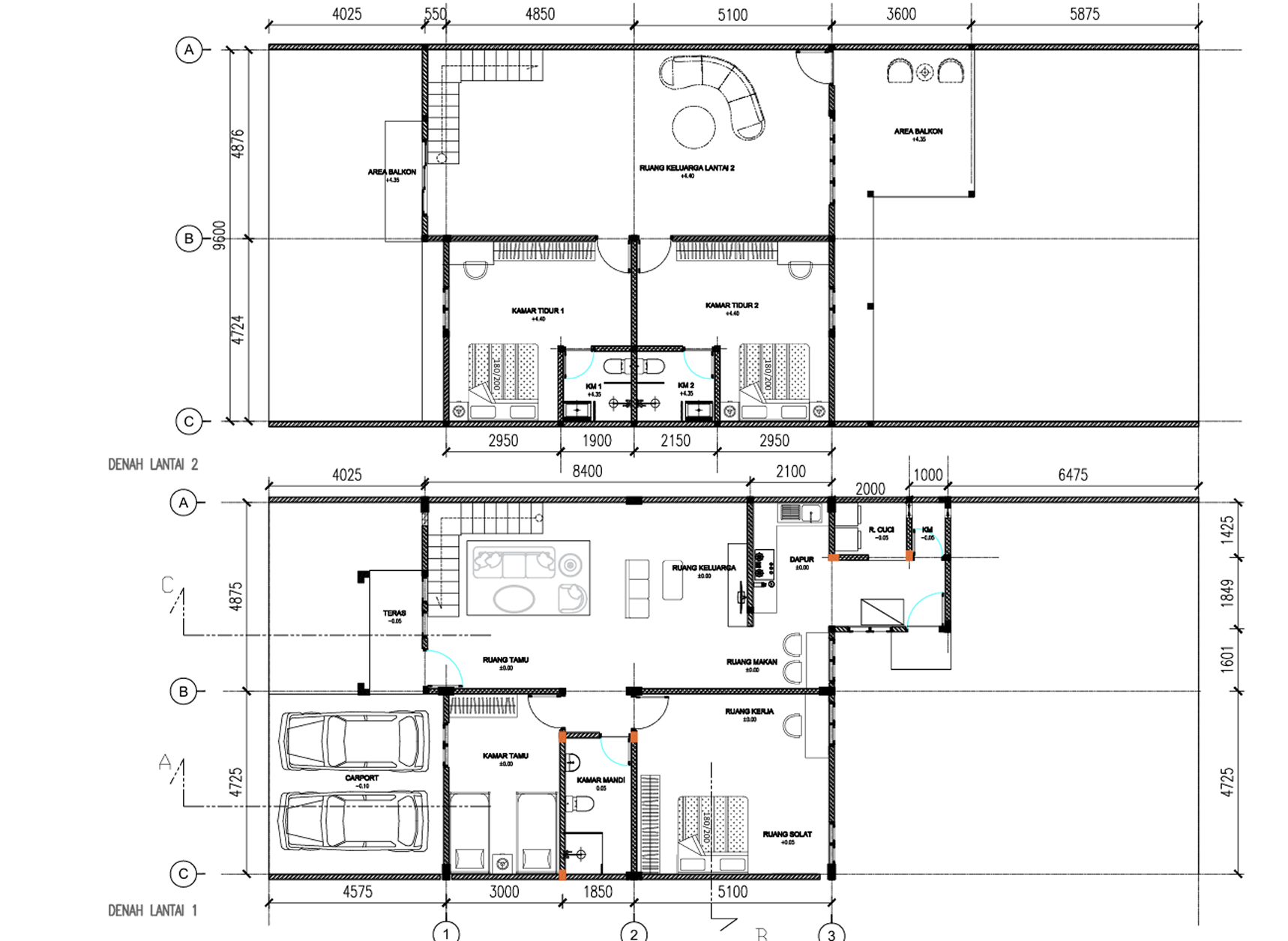
Gambar Arsitektur Lengkap

Anda akan diberikan 24 lembar gambar, terdiri dari gambar arsitektur, gambar elektrikal, gambar plumbing, berserta 3D desain yang disesuaikan dengan paket yang anda pilih.

Kenapa Bangun Rumah Perlu Gambar Arsitektur

Ini Alasan Kenapa Kamu Perlu Gambar Perencanaan Arsitektur
Happy Customers
Memberikan Gambaran Awal Desain
Gambar 2D membantu klien melihat tata letak ruang, proporsi, dan alur sirkulasi bangunan secara jelas sebelum masuk ke tahap visualisasi 3D atau konstruksi.
Dokumen Teknis untuk Pelaksanaan
Gambar 2D berfungsi sebagai acuan kerja bagi kontraktor dan tukang. Detail ukuran, material, serta posisi elemen bangunan ditampilkan secara presisi sehingga meminimalisir kesalahan di lapangan.
Mempermudah Komunikasi Di Lapangan
Tidak semua orang dapat membayangkan desain hanya dari penjelasan verbal. Gambar 2D menjadi media komunikasi yang konkret, sehingga klien lebih mudah memahami ide dan memberikan masukan.
Menghemat Biaya dan Waktu
Perubahan desain lebih mudah dilakukan pada tahap gambar dibandingkan saat konstruksi berjalan. Dengan gambar 2D, potensi masalah dapat diidentifikasi lebih awal sehingga proyek lebih efisien

Apa yang Kamu Dapatkan

Satu Paket Gambar Perencanaan Arsitektur
Gambar 2D berfungsi sebagai acuan kerja bagi kontraktor dan tukang
Melihat bentuk bangunan, proporsi ruang, dan suasana secara nyata
Memudahkan pengawasan dan pengendalian biaya selama proses pembangunan.
Agar lebih mudah memahami desain melalui visual render

Sekilas Kami.

Jelajahi proyek klien yang telah kami kerjakan—dari desain skets, foto lokasi dan gambar arsitektur jadi.
Perencanaan Renovasi+RAB
Rumah Bpk Anton - Bekasi
Perencanaan Arsitektur + Render
Kosan Ibu Mutiara - Lampung
Perencanaan Arsitektur + Sipil
Rumah Bpk Jefry - Tangerang
Perencanaan Arsitektur + RAB
Konsep Bpk Nico - Bekasi
Perencanaan Arsitektur + RAB
Rumah Bpk Kisworo - Serpong
Perencanaan Arsitektur + Render
Rumah Bpk Rey - Sumatra
Perencanaan Arsitktur + Sipil
Rumah Bpk Reza - Kalimantan
Perencanaan Arsitektur + Sipil
Rumah Bpk Yakin - Tegal
Perencanaan Arsitektur + Sipil
Rumah Bpk Adi - Jakarta
Perencanaan Arsitektur
Rumah Bpk Yanto - Bekasi
Perencanaan Arsitektur + Sipil
Rumah Bpk Kevin - Jakarta Pusat
Perencanaan Arsitektur + Render
Apartemen Ibu Anna- Jakarta

Konsultasikan Konepmu sekarang

Poinstudio